Anderson Properties, LLC

eMail@Anderson-Properties.com

Leasing Retail, Office/Warehouse Flex Space

3242 & 3246 W 13th Street, Wichita, KS 67203 Telephone: (316) 945-4488

Home 3242 W. 13th St. - Wichita, KS 3246 W. 13th St. - Wichita, KS Contact Us

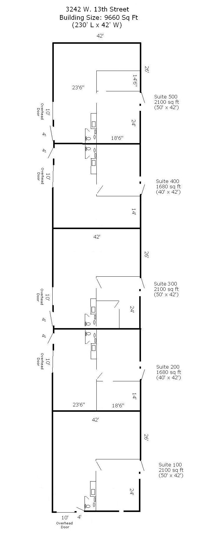
3242 W 13th Street Wichita, KS 67203 Property Description: General Purpose facility consisting of one 9,660 square foot metal building. Located one mile east of 13th & West on 13th for easy access to major roadways. Zoning is Office/Warehouse with a completion date in June of 2000.

Space Available:

Suite 100 - 2,100 sq ft. - Leased

Suite 200 - 1,680 sq ft. - (744 sq ft Office) Leased

Suite 300 - 2,100 sq ft. - Leased

Suite 400 - 1,680 sq ft. - Leased

Suite 500 - 2,100 sq ft. - (800 sq ft Office) Leased

Description:

Drive-In Overhead Door (10x10)

Drive Through Access from 13th Street or Sheridan

Warehouse has 14 foot eve height - fully insulated and heated

3 Phase Electrical

Large ADA Restroom

Front Door Parking

Office area 500 sq ft. with HVAC - Carpet – 9 ft Insulated Ceiling/Walls

Security System Installed - Lighted perimeter and parking lot

Pre-Wired for Telephone, Cable or DSL, Office Cubicles

Break area with counter space and oak cabinets

Lighted Sign on 13th Street and above Suite entrance

Lease Price:

Suite 100 - Leased

Suite 200 - Leased

Suite 300 - Leased

Suite 400 - Leased

Suite 500 - Leased

Lessee pays utilities, increases in real estate taxes, fire/casualty insurance, common area maintenance, pest control, and alarm monitoring. Lessor pays taxes, insurance.